※現在、この物件は募集しておりません。
入船ニッコンビル

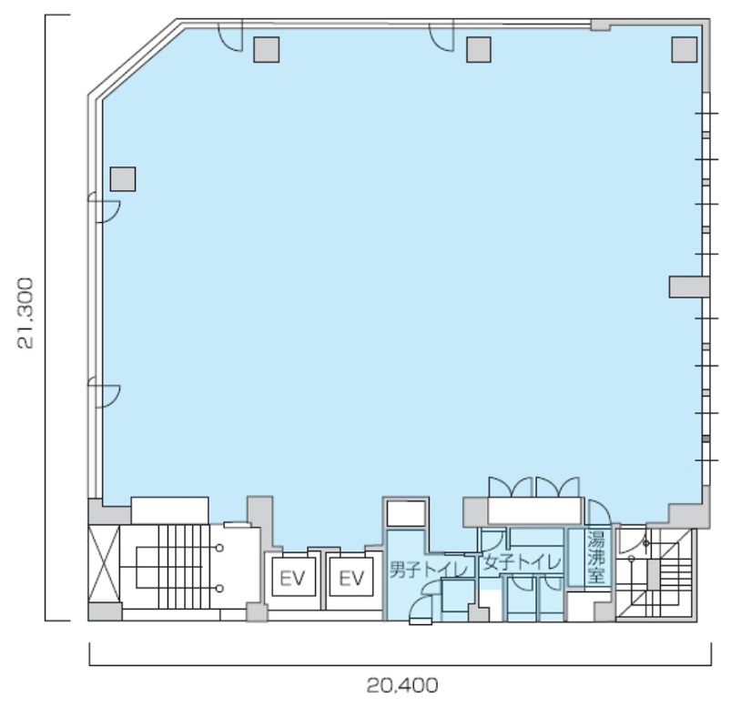
概要
・住 所 東京都中央区入船3-1-13
・竣工年月 1993年3月竣工
・延床面積 3,642.77m²
・構 造 鉄骨鉄筋コンクリート造
・規 模 地上8階、地下1階
・空 調 個別空調
・駐 車 場 車両制限・諸条件は物件資料を参照
交通アクセス
・東京メトロ有楽町線
「新富町駅」から徒歩2分
・JR京葉線、東京メトロ日比谷線
「八丁堀駅」から徒歩7分
お問い合わせ・資料請求はこちらから


